7 lời khuyên để thiết kế phòng ngủ của bạn.
( Nguồn: Houzz)
Bạn cảm thấy một căn phòng như thế nào là thích hợp? Vì căn phòng có thiết kế đơn giản nhưng hợp lý? Nhưng việc có một thiết kế đơn giản khó hơn vẻ ngoài của nó - đặc biệt là trong phòng ngủ. Nhưng nếu bạn thiết lập mặt bằng bố trí phòng ngủ hợp lý ngay từ đầu hoặc sửa sang lại phòng ngủ hiện có, bạn cũng có thể tạo ra một không gian vừa thiết thực vừa đẹp mắt.
Dưới đây là bảy lời khuyên giúp bạn tận dụng tối đa phòng ngủ của mình.
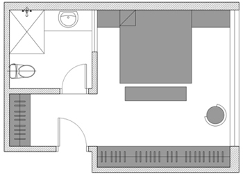
1. Lập mặt bằng lưu thông đơn giản
Cố gắng giữ cho luồng lưu thông của bạn ở một bên của căn phòng. Các khách sạn làm rất tốt điều này, đây cũng là lý do khiến 90% khách sạn có cùng một sơ đồ mặt bằng: bởi vì nó đơn giản và hiệu quả.

Luồng lưu thông trở nên khó hơn một chút với các phòng ngủ có phòng tắm. Để tiết kiệm không gian, hãy chú ý đến vị trí đặt phòng tắm và tủ quần áo trong phòng ngủ của bạn.
2. Tập trung vào góc nhìn
Một phòng ngủ luôn có cảm giác đẹp hơn khi bạn có một khung cảnh dễ chịu ra ngoài cửa sổ. Nếu bạn đang thiết kế một phòng ngủ mới hoặc làm lại một phòng ngủ cũ, hãy cố gắng đưa ra bố cục tập trung góc nhìn vào một không gian như hồ nước hay sân sau của bạn.

3. Giữ sự riêng tư
Sẽ luôn tuyệt vời khi bạn có thể để cửa phòng ngủ mở mà không phá bỏ mọi sự riêng tư của mình. Một sảnh nhỏ sẽ tạo ra sự tách biệt với không gian khác trong nhà. Hãy tránh thiết kế bố cục mà bạn sẽ nhìn thẳng vào phòng ngủ từ một không gian công cộng như một phòng khách hay nhà bếp, phòng ăn.
4. Kết nối với các không gian ngoài trời
Mặc dù điều này có thể không khả thi ở tất cả các vùng khí hậu, nhưng việc kết nối một căn phòng với không gian bên ngoài là một cách tuyệt vời để làm cho không gian có cảm giác rộng hơn và nhận được nhiều ánh sáng tự nhiên hơn. Nếu phòng ngủ của bạn có sân hay hiên liền kề, hãy sử dụng một bộ cửa mở rộng để có thể ngay lập tức tăng không gian kết nối.

5. Xem xét cách bố trí đồ nội thất trong phòng
Khi thiết lập bố cục phòng ngủ, bạn nên tính đến cách sắp xếp các đồ nội thất. Thường trong phòng ngủ, giường ngủ sẽ dựa lưng vào một bức tường, vậy những đồ nội thất khác như tủ quần áo, tủ đầu giường, TV, ghế, bàn làm việc sẽ kê như thế nào?
Hãy làm việc với kiến trúc sư hoặc nhà thiết kế của bạn để đảm bảo có đủ không gian bên cạnh giường đủ rộng rãi để bạn có thể tiếp cận giường từ ba phía.
6. Tăng ánh sáng và thông gió
Nếu phòng ngủ của bạn ở góc của căn nhà, bạn sẽ có cửa sổ trên cả hai mặt tường, điều này có lợi cho việc thông gió và bổ sung ánh sáng tự nhiên nhiều hơn cho căn phòng.
7. Dành thời gian của bạn
Thiết kế tuyệt vời cần thời gian và sự tinh chỉnh trước để bạn có mặt bằng hoàn hảo phù hợp với phong cách sống của mình. Đừng vội vàng, bạn nên dành thêm một chút thời gian để đảm bảo rằng cuối cùng bạn đã có một mặt bằng hợp lý và đầy đủ chức năng.

Sự thật là, thiết kế tuyệt vời không nhất thiết phải là một không gian quá phức tạp và tốn kém khi hoàn thiện. Một không gian sinh hoạt tốt hơn, hiệu quả hơn, tốn ít chi phí xây dựng hơn và dễ bảo trì hơn có thể là một thiết kế tuyệt vời.
